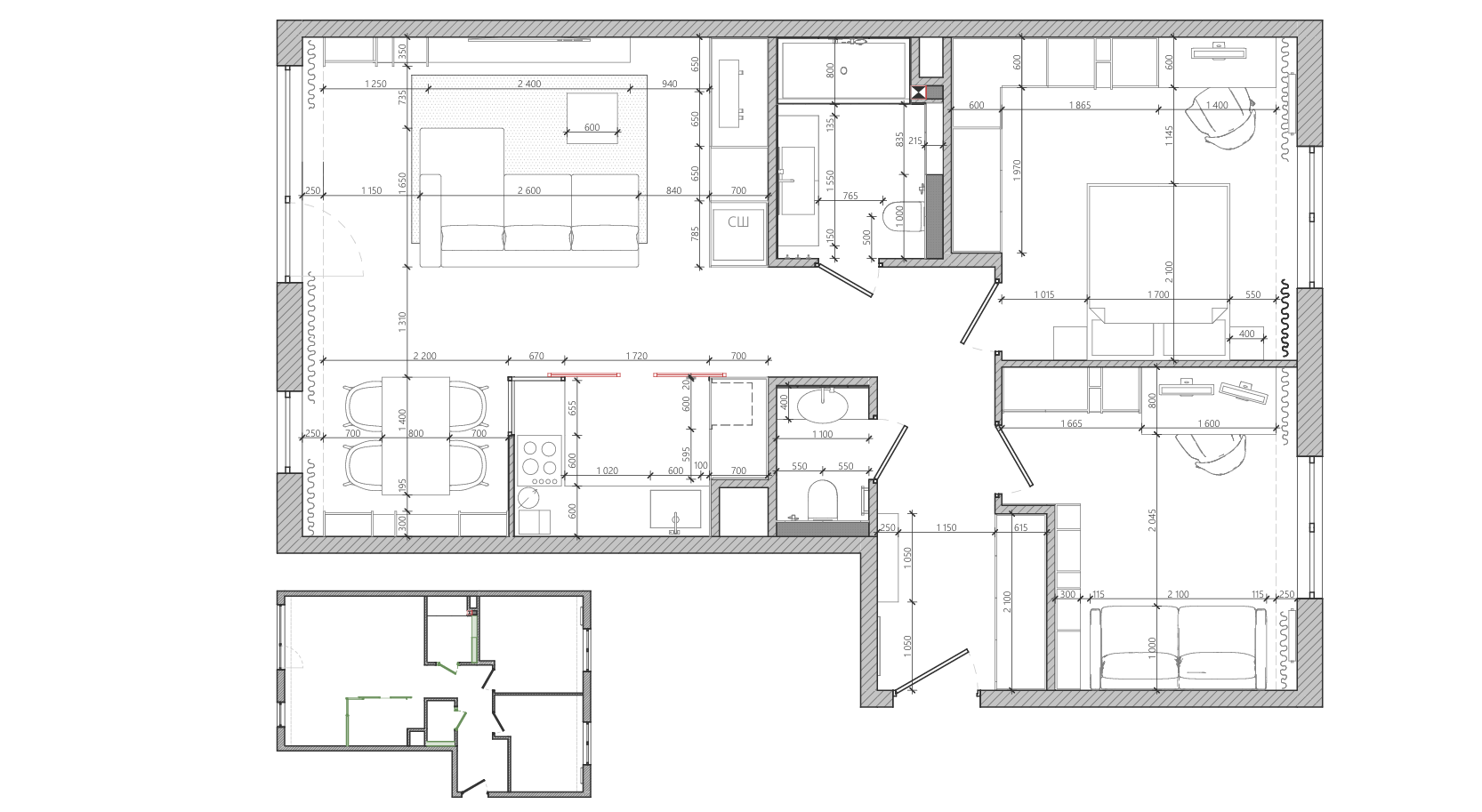
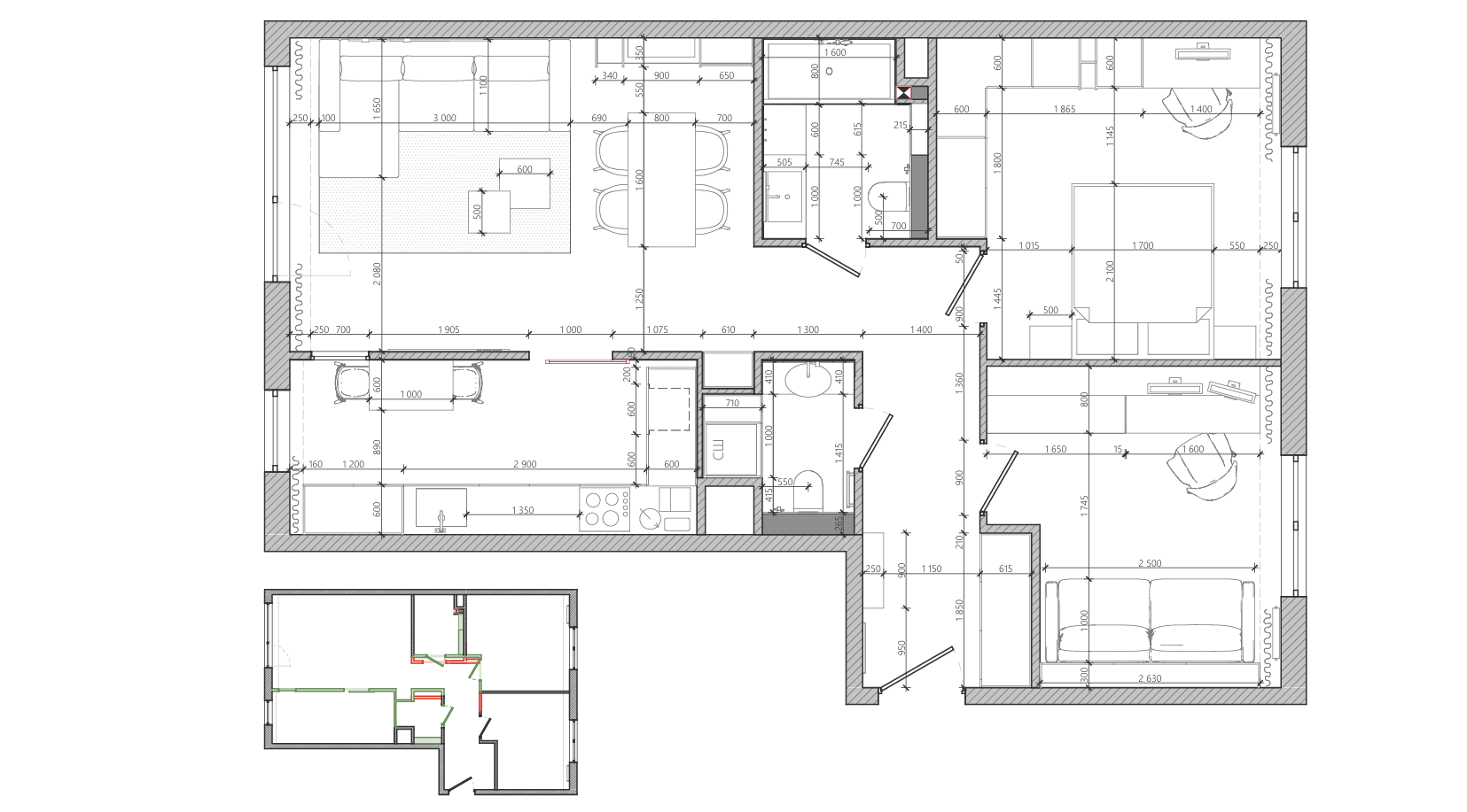
Планировочное решение
Планировочное решение — основной скелет любого пространства, от того насколько он правилен и выверен, зависит не только функциональное использование интерьера, но и сам дизайн.
Мы поможем Вам
понять, какой именно интерьер Вы хотите
1. Поговорим о главном
- Проведем несколько встреч, где узнаем о сценарии Вашей жизни и жизни Вашей семьи.
- Заполним подробный бриф со всеми Вашими пожеланиями.
2. Разработаем планировочное решение
- Сделаем 2-3 варианта планировочных решений и расстановки мебели, опираясь на Ваши пожелания.
- Презентуем Вам планировку в виде 3д модели, которую можно загрузить на телефон или планшет, походить по будущему дому, оценить пространство и габариты мебели.
- Внесем три цикла правок и пожеланий при необходимости
- Создадим планы демонтажа и монтажа конструкций.








